Expertise You Can Trust
KITCHEN & BATH DESIGN, CABINETRY DESIGN
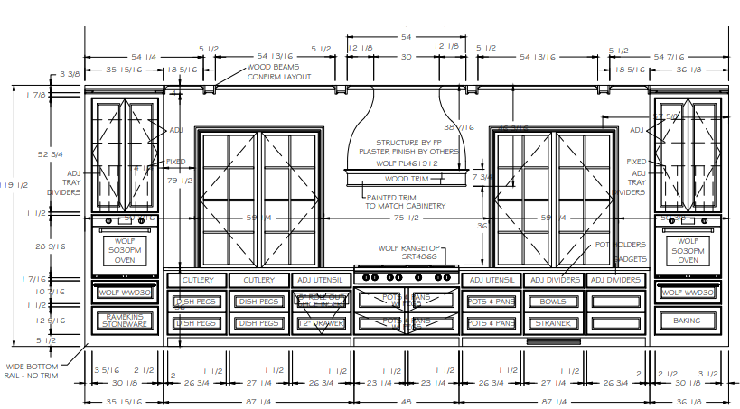
SPACE PLANNING AND BLUEPRINT REVIEW
AAC Design & Consulting has an appetite for all things new in the world of design, an eclectic spirit, and the attention to detail required by the profession. We achieve this by offering personalized cabinet design and spatial solutions, tailored to each client’s unique needs, through both virtual and in-person consultations.
ALICIA CLOWE






